The New Orthodox Christian Studies Center
Transformation of 2535-37 Belmont Avenue
The Orthodox Christian Studies Center is pleased to share plans for its future physical home at Fordham University’s Rose Hill Campus. The 6,000-square-foot building will feature an Orthodox chapel, staff offices, student lounge and meeting spaces, staff offices, living accommodations for graduate students and visiting scholars, and a sizeable backyard for social gatherings. Your generous support makes this exciting opportunity possible. We invite you to check out the prospective renovations below and consider making a gift today.
Project Timeline:
- Vision / Funding / Planning (12 months)
- Design / Development / Construction Documents (6 months)
- Construction (12 months)
- Project Completion (Fall 2027 / 2028)
-
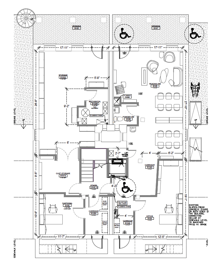
Adjustments include:
- student lounge
- staff offices
- mechanical room
- storage
Floor Plan (1,682 sq ft):

-
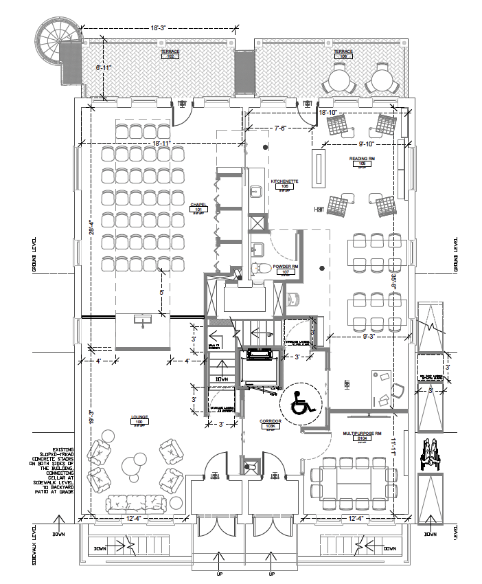
Adjustments include:
- Chapel
- Reading Room
- multimedia
Floor Plan (1,727 sq ft):

-
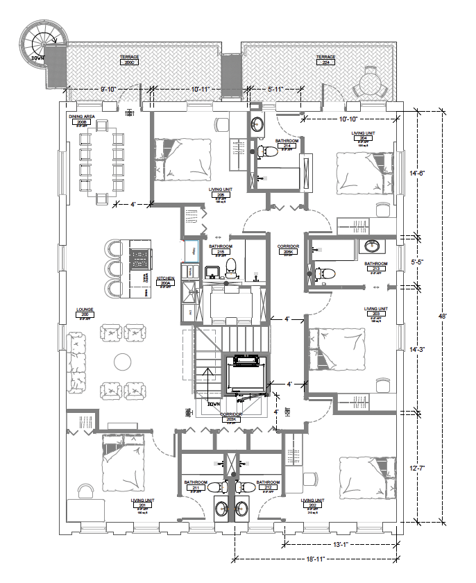
Adjustments include:
- 5 en suite residences (approx. 190 sq ft each)
- living room
- dinning room
- kitchen
Floor Plan (1,788 sq ft):
